
電動閘閥
閥門首頁 > 產品展示 > 閘閥 > 電動閘閥 > 






|
序號 |
零件名稱 |
材料名稱 |
||
|
1 |
閥 體 |
HT200 |
QT450 |
WCB |
|
2 |
閘 板 |
球墨鑄鐵外覆三元乙丙、NBR |
||
|
3 |
內六角螺栓 |
碳化處理 |
碳化處理 |
碳化處理 |
|
4 |
密 封 圈 |
NBR |
NBR |
NBR |
|
5 |
閥 蓋 |
HT200 |
QT450 |
WCB |
|
6 |
閥 桿 |
不銹鋼 |
不銹鋼 |
不銹鋼 |
|
7 |
O形密封圈 |
NBR |
NBR |
NBR |
|
8 |
止 推 軸 承 |
錫青銅 |
錫青銅 |
錫青銅 |
|
9 |
螺 栓 |
不銹鋼 |
不銹鋼 |
不銹鋼 |
|
10 |
壓 蓋 |
球墨鑄鐵、鑄鋼 |
||
|
11 |
防 塵 罩 |
NBR |
NBR |
NBR |
|
12 |
手 輪 |
鑄鐵 |
鑄鐵 |
鑄鐵 |
|
公稱壓力PN(MPa) |
1.0 |
1.6 |
2.5 |
|
殼體試驗壓力(MPa) |
1.5 |
2.4 |
3.75 |
|
密封試驗壓力(MPa) |
1.1 |
1.76 |
2.75 |
|
*進口壓力(MPa) |
1.0 |
1.6 |
2.5 |
|
法蘭標準 |
GB/T 17241.6、 GB/T 9113 |
||
|
試驗標準 |
GB/T 13927 、AP1598 |
||
|
適用介質 |
水、油、氣等 |
||
|
工作溫度 |
0~80℃ |
||
|
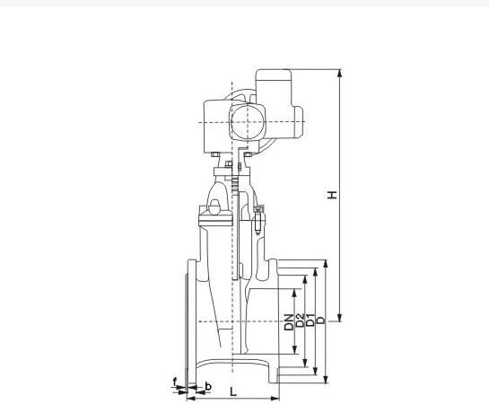
公稱壓力 PN(MPa) |
公稱通徑 DN(mm) |
尺寸(mm) |
|
|
L |
Ha |
||
|
50 |
178 |
313 |
|
|
65 |
190 |
332 |
|
|
80 |
203 |
372 |
|
|
100 |
229 |
424 |
|
|
125 |
254 |
497 |
|
|
150 |
267 |
562 |
|
|
1.0-1.6 |
200 |
292 |
680 |
|
250 |
330 |
837 |
|
|
300 |
356 |
948 |
|
|
350 |
381 |
1010 |
|
|
400 |
406 |
1220 |
|
|
450 |
432 |
1280 |
|
|
500 |
457 |
1480 |
|
|
600 |
508 |
1665 |
|

上一篇:電動彈性座封閘閥Z945X-10/16Q DN400(用在什么地方) / 下一篇:手自一體電動閥門dn125(價格)